-
Features
6 miles to Melton Mowbray, 8 miles to Oakham, 15 miles to LeicesterGreen Energy1GBps Leased LineElectric Car ChargingBiomass Heating3 Phase ElectricityHighly insulated walls and roofsLarge ApronsHigh eaves heightsBespoke BuiltRoller-shutter doorsCCTV & Gated Entrance24/7 SecurityWeighbridgeOnsite Coffee Shop - 15%Meeting Room Access
-
Description
Burrough Court is a thriving 22-acre business park, home to over 350 working professionals across a number of businesses on site.
Ideally located just 15 minutes from the A46, the site offers seamless access to both northbound and southbound routes of the M1, and is only a 40-minute drive from East Midlands Airport. Impressively, 70% of the UK population is reachable within a 4-hour drive time, making Burrough Court a strategically positioned hub for growing businesses.
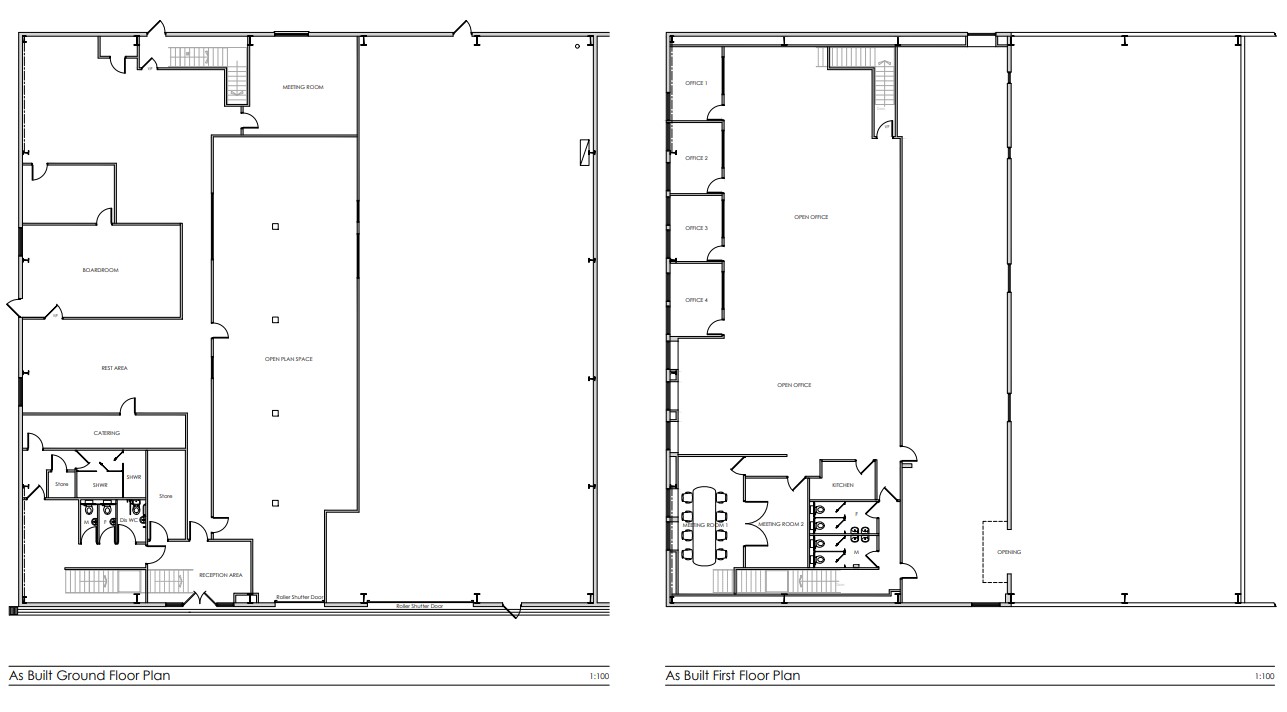
About the Building
This versatile unit offers a cost-effective solution for warehousing with ground and first floor offices, as well as it’s own dedicated reception area. Partly furnished and with a full height electric roller shutter door into the warehouse.Office benefits include:
-
Reception area on Ground Floor
-
Large open plan office space with breakout areas and kitchen, suspended ceilings with LED lighting
-
Air conditioning with fully raised floors and 2.75m floor to ceiling height
Warehouse benefits include:
-
3 phase power
-
7.5m eaves with 9m ridge
-
LED lighting and ample car parking
-
Highly insulated walls and roof
-
Renewable electricity via on site solar and biomass
Travel times
15 minutes from Melton Mowbray
15 minutes from A46
20 minutes from Oakham
25 minutes from M1 J21A
30 minutes from Leicester CityComplete the form or speak to a member of the Estate office who would be happy to discuss this unit and your requirements further.
* Service charge is paid quartery in advance and water & electricity is metered.
-
-
Rent & Business Rates
Rent: £80,000 + VAT per annum, paid quarterly in advance.
*flexible lease terms on offerService Charge: Payable quarterly in advance.
Utilities: Payable monthly in arrears.
EPC: This unit has an EPC rating of B40.
Business Rates: Rates are payable direct to Melton Borough Council. Please contact the Council on 01664 502502 for more information.
The Rateable Value from 1st April 2023: £30,000
-
Dimensions - 14,260 (1,324 m2)
Ground Floor Office – 4,630 sq.ft (430m2)
First Floor Office – 4,680 sq.ft (434m2)
Warehouse – 4,950 sq.ft (459m2)
Total: 14,260 sq.ft (1,324m2)
Office Space Layout
-
Location

